Propiedades

Alicante · Dolores Semi Detached Villa · Nueva construcción

405.000€
Metros: 160m2
Superficie: 260m2
Habitaciones: 3
Piscina
Baños: 2

Características

Habitaciones: 3
Baños: 2
Construidos: 160m2
Parcela: 260m2
Piscina: Piscina privada
Air Conditioning
Laundry
Pool
Basement
Reinforced door
Home appliances
Calificación energética
Calificación energéticaA

Descripción

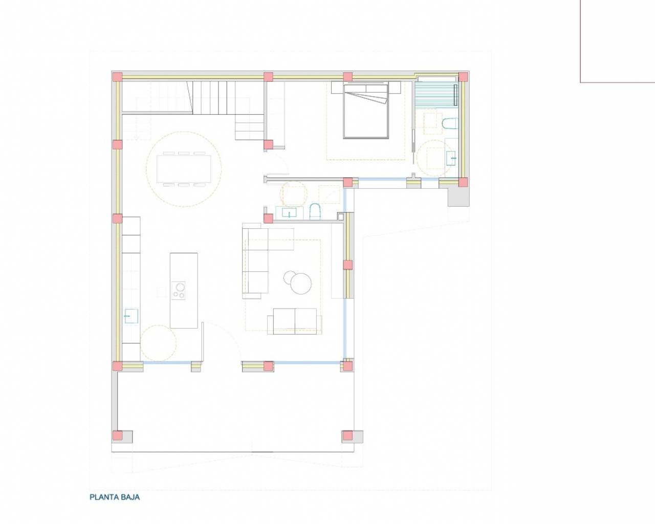
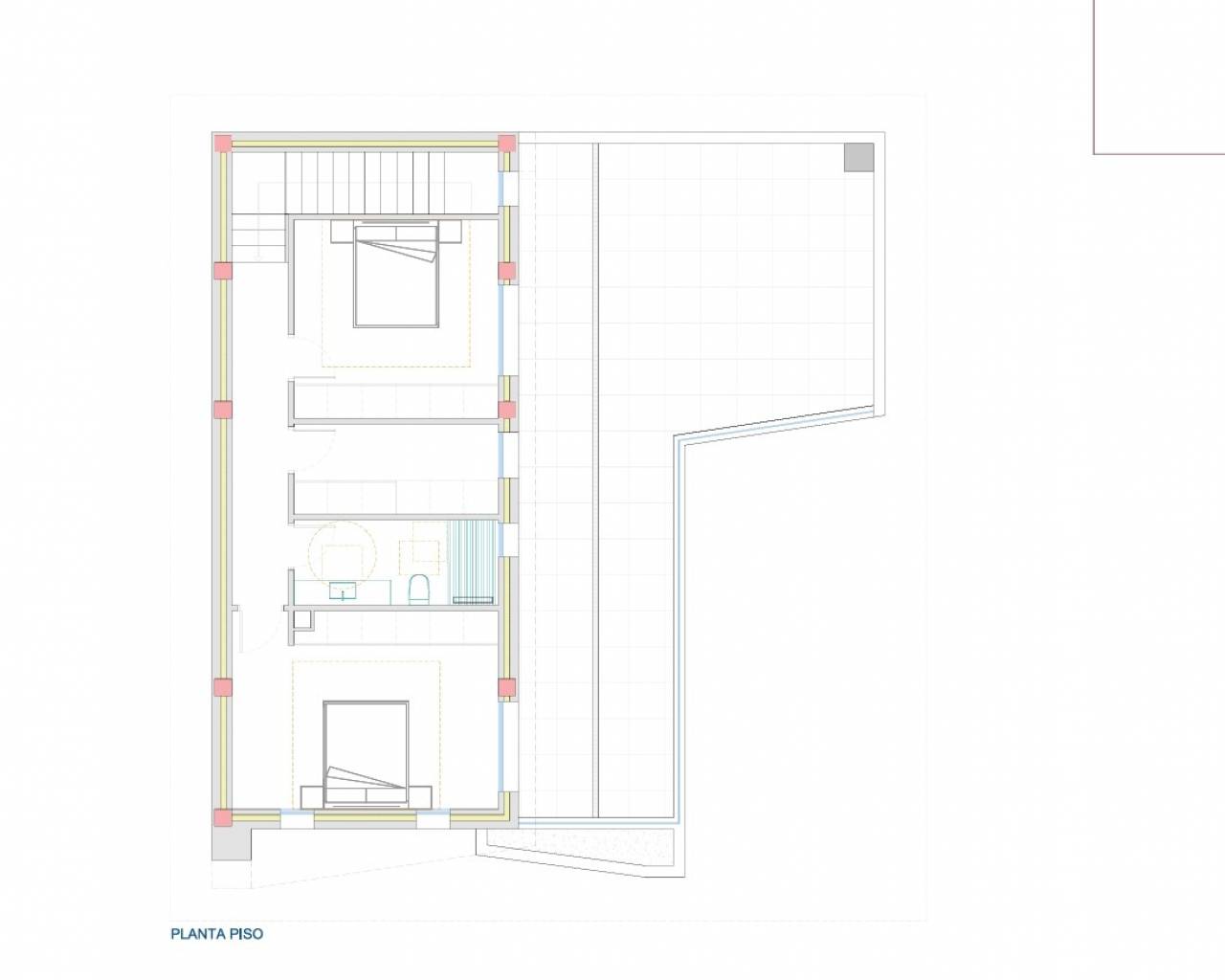
Un proyecto de obra nueva en tres fases, comenzando con la Fase 11 en la zona sur. Esta fase consta de seis villas muy espaciosas y modernas. El proyecto se ubica en el encantador barrio de Dolores. En la planta baja, encontramos un amplio salón, una preciosa cocina con isla, una acogedora y espaciosa zona de TV y un aseo de cortesía. La casa cuenta con tres dormitorios dobles: uno en la planta baja con baño en suite y dos en la primera planta, que también incluye un baño familiar y un lavadero. La superficie total construida es de aproximadamente 165 metros cuadrados, con una parcela de aproximadamente 260 metros cuadrados, lo que ofrece un amplio espacio para una vida cómoda. La villa también cuenta con un sótano (bodega técnica) que se entrega sin terminar, pero se puede terminar por un suplemento. La casa cuenta con una preciosa cocina americana con electrodomésticos integrados y barra americana, un acogedor y espacioso salón, dormitorios con armarios empotrados y mucho más. Su hermosa y espaciosa distribución proporciona abundante luz natural y una agradable vista a la hermosa terraza y al parque de la ciudad. Además de la terraza en la planta baja, la villa también cuenta con una espaciosa terraza en el primer piso y el lujo de una piscina privada, perfecta para relajarse o entretenerse, además de aparcamiento en el mismo lugar. Todas las ventanas de aluminio cuentan con persianas eléctricas y la casa cuenta con una puerta de seguridad blindada. El aire acondicionado está instalado tanto en la planta baja como en el primer piso, lo que la hace lista para su ocupación inmediata.

Localización

Economía

Esta información que se proporciona aquí está sujeta a errores y no forma parte de ningún contrato. La oferta se puede cambiar o retirar sin previo aviso. Los precios no incluyen los costes de compra

Calcular hipoteca

Cambio de divisas

  • Libras: 352.775 GBP
  • Rublo Ruso: 352.775 RUB
  • Franco Suizo: 374.261 CHF
  • Yuan Chino: 3.238.664 CNY
  • Dolar: 474.296 USD
  • Corona Sueca: 4.388.580 SEK
  • Corona Noruega: 4.502.183 NOK

Quiero informacion

Responsable del tratamiento: , Finalidad del tratamiento: Gestión y control de los servicios ofrecidos a través de la página Web de Servicios inmobiliarios, Envío de información a traves de newsletter y otros, Legitimación: Por consentimiento, Destinatarios: No se cederan los datos, salvo para elaborar contabilidad, Derechos de las personas interesadas: Acceder, rectificar y suprimir los datos, solicitar la portabilidad de los mismos, oponerse altratamiento y solicitar la limitación de éste, Procedencia de los datos: El Propio interesado, Información Adicional: Puede consultarse la información adicional y detallada sobre protección de datos Aquí.